


Úžitková plocha domu
191,23 m²
z toho prízemie
115,93 m²
a poschodie
75,30 m²
Cena
Na vyžiadanie
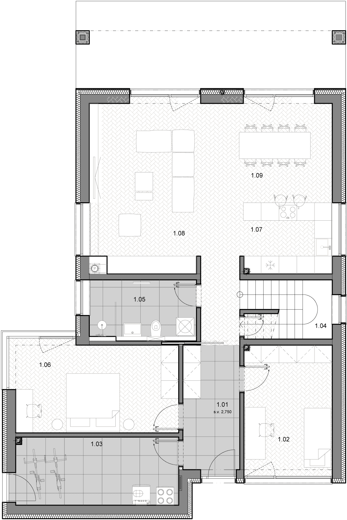
1.01 Vstupná hala
9,40
m²
1.02 Šatník
4,10
m²
1.03 Špajza / Sklad
2,48
m²
1.04 Tech. miestnosť
7,48
m²
1.05 Chodba / Šatník
4,49
m²
1.06 Kúpelnňa
7,05
m²
1.07 Spálňa
18,98
m²
1.08 WC
1,81
m²
1.09 Kuchyňa
21,24
m²
1.10 Obývacia izba
29,25
m²
1.11 WC
2,10
m²
1.12 Kúpelňa
5,47
m²
1.13 Šatník
4,12
m²
1.14 Izba
15,00
m²
1.15 Izba
15,25
m²
1.16 Chodba
11,24
m²
1.01 Vstupná hala
7,70
m²
1.02 Hosťovská izba
12,54
m²
1.03 Chodba
3,92
m²
1.04 Schodisko
6,24
m²
1.05 Kúpelňa
7,44
m²
1.06 Garáž
30,43
m²
1.07 Kuchyňa
8,94
m²
1.08 Obývacia izba
25,17
m²
1.09 Jedáleň
13,13
m²
2.01 Chodba
4,61
m²
2.02 Izba
16,74
m²
2.03 Izba
15,27
m²
2.04 Kúpelňa
6,97
m²
2.05 Spálňa
20,73
m²
2.06 Šatník
6,51
m²
2.07 Kúpelňa
4,47
m²
1.01 Vstupná hala
7,80
m²
1.02 Hosťovská izba
12,54
m²
1.03 Chodba
5,79
m²
1.04 Schodisko
6,24
m²
1.05 Kúpelňa
5,12
m²
1.06 Garáž
30,43
m²
1.07 Kuchyňa
8,94
m²
1.08 Obývacia izba
25,17
m²
1.09 Jedáleň
13,13
m²
2.01 Chodba
4,61
m²
2.02 Izba
16,74
m²
2.03 Izba
15,27
m²
2.04 Kúpelňa
6,97
m²
2.05 Spálňa
20,73
m²
2.06 Šatník
6,51
m²
2.07 Kúpelňa
4,47
m²
1.01 Vstupná hala
12,29
m²
1.02 Izba
12,54
m²
1.03 Sklad / Tech. m.
12,95
m²
1.04 Schodisko
6,24
m²
1.05 Kúpelňa
7,44
m²
1.06 Izba
17,23
m²
1.07 Kuchyňa
8,94
m²
1.08 Obývacia izba
25,17
m²
1.09 Jedáleň
13,13
m²
2.01 Chodba
4,61
m²
2.02 Izba
16,74
m²
2.03 Izba
15,27
m²
2.04 Kúpelňa
6,97
m²
2.05 Spálňa
20,73
m²
2.06 Šatník
6,51
m²
2.07 Kúpelňa
4,47
m²
1.01 Vstupná hala
9,78
m²
1.02 Šatník
5,93
m²
1.03 Izba
14,92
m²
1.04 Kúpelňa
5,04
m²
1.05 Tech. m. / sklad
14,01
m²
1.06 Izba
16,33
m²
1.07 Schodisko
6,94
m²
1.08 Kuchyňa
20,59
m²
1.09 Obývacia izba
34,65
m²
2.01 Chodba
10,49
m²
2.02 Spálňa
14,40
m²
2.03 Šatník
6,49
m²
2.04 Kúpelňa
5,93
m²
2.05 Kúpelňa
4,23
m²
2.06 Izba
11,86
m²
2.07 Izba
12,90
m²
1.01 Garáž
17,66
m²
1.02 Vstupná hala
7,55
m²
1.03 WC
1,49
m²
1.04 Chodba
7,11
m²
1.05 Kuchyňa
8,10
m²
1.06 Jedáleň
9,53
m²
1.07 Obývacia izba
22,16
m²
1.08 Chodba
5,45
m²
1.09 Tech. miestnosť
4,64
m²
1.10 Kúpelňa
5,98
m²
1.11 Izba
13,34
m²
1.12 Izba
12,49
m²
1.13 Izba
13,13
m²
1.01 Garáž
36,53
m²
1.02 Vstupná hala
10,45
m²
1.03 WC
1,75
m²
1.04 Tech. miestnosť
4,46
m²
1.05 Kuchyňa
18,05
m²
1.06 Obývacia izba
35,83
m²
1.07 Schodisko
4,35
m²
2.01 Chodba
9,36
m²
2.02 Spálňa
14,75
m²
2.03 Spálňa
14,75
m²
2.04 Spálňa
17,98
m²
2.05 Kúpelňa
5,02
m²
2.06 Kúpelňa
7,84
m²
Pozemky
Dostatok miesta pre život. Zmestiť na pozemok rodinný dom, garážové státie a terasu je úžasné. Ak to doplníte okrasnou záhradou, bylinkovým či zeleninovým záhonom, je to luxus.
Číslo pozemku
Výmera
Stav
No items found.









